LDP型单梁桥式起重机产品简介:
LDP型电动单梁桥式起重机(以下简称偏轨式单梁起重机)是按标准JB/T1306-94设计制造的,与CDI、MDI等形式的电动葫芦配套使用,成为一种有轨运行的轻小型起重机,其适用起重量为1-10t,适用跨度为10.5-25.5米工作环境温度在—25—+40℃范围内,主要特点是与LD型的结构上有区别,LDP型的电动葫芦安置在起重机主梁上方,而LD型起重机的电动葫芦则悬挂在起重机主梁下方,其主要的作用是高性价比的基础上提升起重机的起升高度,在更拮据的空间里发挥最大的起吊高度。
为方便用户,设有地面和操纵室两种操纵形式,操纵室又设有端面及侧面开门两种形式,以供用户选择使用。
本产品为一般用途的偏轨式单梁起重机,多用于吊运管装细长形物状等场所,其结构特点如下:
(1) 地面操纵
例:起重量:10t,跨度:22.5m,工作级别:A3
表示方法:LDP10-22.5A3D,JB/T1306-94
(2) 操纵室操纵
例:起重量:10t,跨度:22.5m,工作级别:A3
表示方法:LDP10-22.5A3S,JB/T1306-94
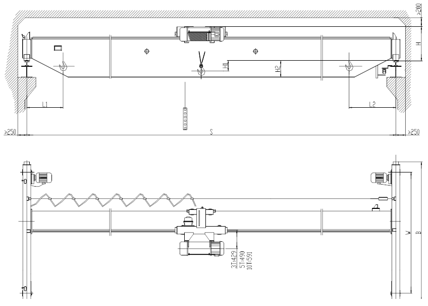
LDP型电动单梁起重机主要尺寸图纸:

| 起重量Cap(t) | 3 | ||||||
| 跨度Span(m) | 10.5 | 13.5 | 16.5 | 19.5 | 22.5 | 25.5 | |
| 工作制度Duty | A3-A5 | ||||||
| 起升高度LiftingHeight | 6、9、12m(标准起升高度为6m) | ||||||
| 起升速度LiftingSpeed | 8,8/0.8m/min(标准起升速度为8m/min) | ||||||
| 小车运行速度Travelling | 20、30m/min(标准小车运行速度为20m/min) | ||||||
| 起重机运行速度Travelling | 20、30、45m/min(标准起重机运行速度为30m/min) | ||||||
| 操纵方式Worktype | 地控、遥控 | ||||||
| 电源PowetSupply | 3AC,380V,50HZ | ||||||
| 装机容量Chiefvolume | 8.3KW | ||||||
| 荐用轨道CraneRail | P15、P18、P22 | ||||||
| 主要尺寸(mm) MainDimension | H | 780 | 870 | 923 | |||
| H1 | 110 | 17 | -36 | ||||
| H2 | 49 | 149 | 199 | 199 | 350 | 450 | |
| K | 2500 | 3000 | 3500 | ||||
| B | 3000 | 3500 | 4000 | ||||
| L1 | 850 | ||||||
| L2 | 850 | ||||||
| 最大轮压(KN)Max.Wheelloading | 25.6 | 25.8 | 26.6 | 28.8 | 33.4 | 35.8 | |
| 起重机总重(t)Totalweight | 2.91 | 3.43 | 4.2 | 4.96 | 6.23 | 7.2 | |
| 起重量Cap(t) | 5 | ||||||
| 跨度Span(m) | 10.5 | 13.5 | 16.5 | 19.5 | 22.5 | 25.5 | |
| 工作制度Duty | A3-A5 | ||||||
| 起升高度LiftingHeight | 6、9、12m(标准起升高度为6m) | ||||||
| 起升速度LiftingSpeed | 8,8/0.8m/min(标准起升速度为8m/min) | ||||||
| 小车运行速度Travelling | 20、30m/min(标准小车运行速度为20m/min) | ||||||
| 起重机运行速度Travelling | 20、30、45m/min(标准起重机运行速度为30m/min) | ||||||
| 操纵方式Worktype | 地控、遥控 | ||||||
| 电源PowetSupply | 3AC,380V,50HZ | ||||||
| 装机容量Chiefvolume | 12.1KW | ||||||
| 荐用轨道CraneRail | P18、P22、P24 | ||||||
| 主要尺寸(mm) MainDimension | H | 790 | 863 | 980 | |||
| H1 | 50 | -10 | -57 | ||||
| H2 | 100 | 200 | 250 | 350 | 450 | 600 | |
| K | 2500 | 3000 | 3500 | ||||
| B | 3000 | 3500 | 4000 | ||||
| L1 | 900 | ||||||
| L2 | 900 | ||||||
| 最大轮压(KN)Max.Wheelloading | 38.6 | 38.8 | 40.2 | 41.4 | 43.2 | 47.5 | |
| 起重机总重(t)Totalweight | 3.4 | 4.04 | 4.65 | 5.75 | 6.61 | 7.8 | |
| 起重量Cap(t) | 10 | ||||||
| 跨度Span(m) | 10.5 | 13.5 | 16.5 | 19.5 | 22.5 | 25.5 | |
| 工作制度Duty | A3-A5 | ||||||
| 起升高度LiftingHeight | 6、9、12m(标准起升高度为6m) | ||||||
| 起升速度LiftingSpeed | 7,7/0.7m/min(标准起升速度为7m/min) | ||||||
| 小车运行速度Travelling | 20、30m/min(标准小车运行速度为20m/min) | ||||||
| 起重机运行速度Travelling | 20、30、45m/min(标准起重机运行速度为30m/min) | ||||||
| 操纵方式Worktype | 地控、遥控 | ||||||
| 电源PowetSupply | 3AC,380V,50HZ | ||||||
| 装机容量Chiefvolume | 19KW | ||||||
| 荐用轨道CraneRail | P24、P38 | ||||||
| 主要尺寸(mm) | H | 950 | 980 | 1016 | 1080 | ||
| MainDimension | H1 | 0 | -17 | -66 | -130 | ||
| H2 | 162 | 252 | 352 | 372 | 472 | 622 | |
| K | 2500 | 3000 | 3500 | ||||
| B | 3000 | 3500 | 4000 | ||||
| L1 | 1200 | ||||||
| L2 | 1200 | ||||||
| 最大轮压(KN)Max.Wheelloading | 65.4 | 64.7 | 66.6 | 70.8 | 73.1 | 78.7 | |
| 起重机总重(t)Totalweight | 4.54 | 5.3 | 6.05 | 7.01 | 8.3 | 9.6 | |
想了解物料、产量、选型及本月优惠报价信息,欢迎您拨打熊猫体育 的服务电话或者在线咨询获取!
服务热线:86-13929139265