QD型通用桥式起重机简介
QD型通用桥式起重机(以下简称通用起重机)按照标准GB/T14405-93设计 制造,工作级别A3~A6,工作环境温度在-25℃ ~ +40℃范围内。
本产品为一般用途起重机,多用于机械制造、装配、仓库等场所,不适于在以下条件工作:
a、 有爆炸危险和火灾危险的环境;
b、 相对湿度大于85%的场所和充满腐蚀性气体的环境;
c、 吊运熔化金属,有毒物品和易燃易爆物品。
本起重机操纵形式为地面手柄+遥控器操纵。
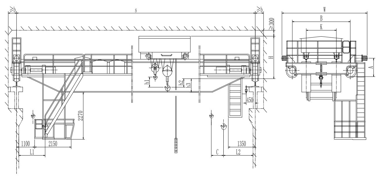
1、通用桥式起重机由大车和小车两部分组成。小车上装有起升机构和和小车运行机构,整个小车沿装于主梁盖板上的小车轨道运行;大车部分则是由起重机桥架等组成。在大车桥架上装有大车运行机构和小车输电装置。
2、起重机的金属结构由桥架、小车架组成,是起重机的承载结构。桥架由主梁、端梁、走台和防护栏等组成,主梁和端梁均由钢板拼焊成箱形断面结构,具有足够的强度、刚度和稳定性,确保起重机安全运转。
3、起重机机构传动机构由起升机构、小车运行机构和大车运行机构等
三部分组成。
4、电气传动部分由电气设备和电气线路所组成。电气设备包括各机构
电动机、制动器驱动装置、电气控制装置及电气保护装置等组成;电气线路
由主回路、控制回路和警示信号回路所组成。
5、 本产品表示方法如下:
本机起重量:10t;跨度:22.50m;工作级别:A6 ;
操控方式:地控+遥控(D+Y)
表示方法:QD10-22.50 A6 D+Y GB/G14405-93

| 起重量Cap(t) | 5 | 10 | |||||||||||||||
| 最大起升高度(m) | 16 | ||||||||||||||||
| Max.LiftingHeight | |||||||||||||||||
| 跨度Span(m) | 10.5 | 13.5 | 16.5 | 19.5 | 22.5 | 25.5 | 28.5 | 31.5 | 10.5 | 13.5 | 16.5 | 19.5 | 22.5 | 25.5 | 28.5 | 31.5 | |
| 起升速度(m/min) HoistingSpeed | A5 | 11.3 | 8.6 | ||||||||||||||
| A6 | 15.6 | 13.2 | |||||||||||||||
| 小车运行速度(m/min) Travelling | 37.2 | 37 | |||||||||||||||
| 起重机运行速度(m/min) Travelling | A5 | 操作室控制:70地面控制:40 | |||||||||||||||
| A6 | 操作室控制:90地面控制:40 | ||||||||||||||||
| 操纵方式Worktype | 地面操纵操纵室操纵遥控 | ||||||||||||||||
| 电源PowetSupply | 3AC380V50HZ | ||||||||||||||||
| 装机容量(KW) | A5 | 19.9 | 24.6 | 28.2 | |||||||||||||
| Chiefvolume | A6 | 27.5 | 43.2 | 47.2 | |||||||||||||
| 荐用轨道CraneRail | P24 | P24,P38 | |||||||||||||||
| 主要尺寸(mm)MainDimension | b | 310 | 310 | ||||||||||||||
| H | 1760 | 1780 | |||||||||||||||
| K | 1400 | 2000 | |||||||||||||||
| W | 3400 | 4100 | 4100 | 4600 | |||||||||||||
| B | 4824 | 5524 | 5524 | 6024 | |||||||||||||
| A | 700 | ||||||||||||||||
| h2 | 96 | 94 | 323 | 321 | |||||||||||||
| h3 | 76 | 176 | 246 | 326 | 476 | 676 | 776 | 926 | 76 | 176 | 246 | 326 | 476 | 676 | 776 | 926 | |
| L1 | 860 | 1090 | |||||||||||||||
| L2 | 1420 | 1500 | |||||||||||||||
| 起重量Cap(t) | 16/3.2 | 20/5 | ||||||||||||||||
| 最大起升高度(m) Max.LiftingHeight | 主钩 | 16 | 12 | |||||||||||||||
| 副钩 | 18 | 14 | ||||||||||||||||
| 跨度Span(m) | 10.5 | 13.5 | 16.5 | 19.5 | 22.5 | 25.5 | 28.5 | 31.5 | 10.5 | 13.5 | 16.5 | 19.5 | 22.5 | 25.5 | 28.5 | 31.5 | ||
| 起升速度 HoistingSpeed (m/min) | A5 | 主钩 | 7.9 | 7.2 | ||||||||||||||
| 副钩 | 15.4 | 12.6 | ||||||||||||||||
| A6 | 主钩 | 13 | 12.4 | |||||||||||||||
| 副钩 | 15.4 | 12.6 | ||||||||||||||||
| 小车运行速度(m/min) | 37 | 30 | ||||||||||||||||
| Travelling | ||||||||||||||||||
| 起重机运行速度(m/min) | A5 | 操作室控制:80地面控制:40 | 操作室控制:78地面控制:40 | |||||||||||||||
| Travelling | A6 | 操作室控制:90地面控制:40 | ||||||||||||||||
| 操纵方式Worktype | 地面操纵操纵室操纵遥控 | |||||||||||||||||
| 电源PowetSupply | 3AC380V50HZ | |||||||||||||||||
| 装机容量(KW) | A5 | 47.7 | 51.7 | 47.7 | 74.7 | |||||||||||||
| Chiefvolume | A6 | 66.7 | 73.7 | 66.7 | 81.7 | |||||||||||||
| 荐用轨道CraneRail | P24,P38 | P24,P38 | ||||||||||||||||
| 主要尺寸(mm) | b | 350 | 350 | |||||||||||||||
| H | 2100 | 2100 | ||||||||||||||||
| K | 2000 | 2000 | ||||||||||||||||
| W | 4100 | 4400 | 4100 | 4400 | ||||||||||||||
| B | 6040 | 6340 | 6040 | 6340 | ||||||||||||||
| A | 815 | 915 | 815 | 915 | ||||||||||||||
| h1 | 808 | 967 | ||||||||||||||||
| h2 | 699 | 599 | 699 | 599 | ||||||||||||||
| h3 | 82 | 86 | 184 | 232 | 380 | 530 | 680 | 830 | 82 | 86 | 184 | 232 | 380 | 530 | 680 | 830 | ||
| L1 | 1960 | 2003 | ||||||||||||||||
| L2 | 1630 | 1581 | ||||||||||||||||
| C | 572 | 836 | ||||||||||||||||
| 起重量Cap(t) | 32/5 | 50/10 | ||||||||||||||||
| 最大起升高度(m) | 主钩 | 16 | 12 | |||||||||||||||
| Max.LiftingHeight | 副钩 | 18 | 14 | |||||||||||||||
| 跨度Span(m) | 10.5 | 13.5 | 16.5 | 19.5 | 22.5 | 25.5 | 28.5 | 31.5 | 10.5 | 13.5 | 16.5 | 19.5 | 22.5 | 25.5 | 28.5 | 31.5 | ||
| 起升速度 HoistingSpeed (m/min) | A5 | 主钩 | 6.2 | 5.3 | ||||||||||||||
| 副钩 | 12.6 | 13.2 | ||||||||||||||||
| A6 | 主钩 | 9.5 | 6.9 | |||||||||||||||
| 副钩 | 19.5 | 13.2 | ||||||||||||||||
| 小车运行速度(m/min) | 31 | 30 | ||||||||||||||||
| Travelling | ||||||||||||||||||
| 起重机运行速度(m/min) | A5 | 操作室控制:60地面控制:40 | ||||||||||||||||
| Travelling | A6 | 操作室控制:75地面控制:40 | ||||||||||||||||
| 操纵方式Worktype | 地面操纵操纵室操纵遥控 | |||||||||||||||||
| 电源PowetSupply | 3AC380V50HZ | |||||||||||||||||
| 装机容量(KW) | A5 | 64.5 | 68.5 | 89.5 | 96.5 | |||||||||||||
| Chiefvolume | A6 | 90.5 | 97.5 | 106.5 | 114.5 | |||||||||||||
| 荐用轨道CraneRail | P38,P43 | P43,P50 | ||||||||||||||||
| 主要尺寸(mm) | b | 350 | 400 | 400 | ||||||||||||||
| H | 2339 | 2439 | 2469 | 2650 | ||||||||||||||
| K | 2500 | 2500 | ||||||||||||||||
| W | 4650 | 4700 | 5000 | 4800 | 5000 | |||||||||||||
| B | 6474 | 6620 | 6924 | 6742 | 6924 | |||||||||||||
| A | 940 | 1040 | 1070 | 1090 | ||||||||||||||
| h1 | 790 | 1030 | ||||||||||||||||
| h2 | 701 | 601 | 571 | 1234 | 1228 | |||||||||||||
| h3 | 90 | 94 | 244 | 294 | 444 | 564 | 714 | 814 | -82 | 98 | 104 | 254 | 404 | 554 | 704 | 804 | ||
| L1 | 2050 | 2171 | ||||||||||||||||
| L2 | 1700 | 2000 | ||||||||||||||||
| C | 980 | 1071 | ||||||||||||||||
想了解物料、产量、选型及本月优惠报价信息,欢迎您拨打熊猫体育 的服务电话或者在线咨询获取!
服务热线:86-13929139265