LH型双梁桥式起重机产品简介
LH型双梁桥式起重机(以下简称双梁起重机)是按标准JB/T3695-1994设计制造的,与CDI、MDI等形式的电动葫芦配套使用,成为一种有轨运行的轻小型双梁起重机,其适用起重量为3-32t,国标范围内适用跨度为7.5-22.5米,工作级别A3~A5,工作环境温度在-25℃ ~ +40℃范围内。
本产品为一般用途起重机,多用于机械制造、装配、仓库等场所,不适于在以下条件工作:
a、 有爆炸危险和火灾危险的环境;
b、 相对湿度大于85%的场所和充满腐蚀性气体的环境;
c、 吊运熔化金属,有毒物品和易燃易爆物品。
为方便用户,设有地面和操纵室两种操纵形式,操纵室又设有端面及侧面开门两种形式,以供用户选择使用。
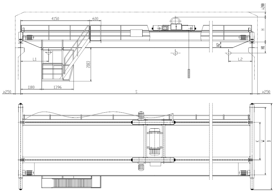
(1) 地面操纵
例:起重量:5t,跨度:13.5m,工作级别:A4
表示方法:LH5-13.5 A4D,JB/T3695-94
(2) 操纵室操纵
例:起重量:10t,跨度:16.5m,工作级别:A5
表示方法:LH10-16.5 A5S,JB/T3695-94

| 起重量Cap(t) | 3 | ||||||||||||||||
| 起升高度(m)Lifting Height | 6 | 9 | |||||||||||||||
| Span跨度(m) | 10.5 | 13.5 | 16.5 | 19.5 | 22.5 | 25.5 | 28.5 | 31.5 | 10.5 | 13.5 | 16.5 | 19.5 | 22.5 | 25.5 | 28.5 | 31.5 | |
| 工作制度Duty | A3-A5 | ||||||||||||||||
| 起升速度Lifting Speed | 8m/min、8/0.8m/min | ||||||||||||||||
| 小车运行速度Travelling | 20,30m/min | ||||||||||||||||
| 起重机运行速度Travelling | 20,30,45m/min | ||||||||||||||||
| 操纵方式Work type | 地控、室控、遥控 | ||||||||||||||||
| 电源Powet Supply | 3AC,380V,50HZ | ||||||||||||||||
| 装机容量Chief volume | 7.7KW | 9.1KW | 7.7KW | 9.1KW | |||||||||||||
| 荐用轨道Crane Rail | P18、P22 | ||||||||||||||||
| 主要尺寸(mm) Main Dinension | H | 1040 | 1105 | 1155 | 1040 | 1105 | 1155 | ||||||||||
| H | 50 | -30 | -80 | 50 | -30 | -80 | |||||||||||
| H2 | 92 | 142 | 242 | 322 | 357 | 427 | 527 | 577 | 92 | 142 | 242 | 322 | 357 | 427 | 527 | 577 | |
| L1 | 900 | ||||||||||||||||
| L2 | 900 | ||||||||||||||||
| K | 900 | 1000 | 1000 | 1100 | |||||||||||||
| W | 2300 | 2400 | 2600 | 2800 | 3000 | 3500 | 2400 | 2500 | 2700 | 2800 | 3000 | 3500 | |||||
| B | 2800 | 2900 | 3100 | 3300 | 3500 | 4000 | 2900 | 3000 | 3200 | 3300 | 3500 | 4000 | |||||
| 起重量Cap(t) | 5 | ||||||||||||||||
| 起升高度(m)Lifting Hleight | 6 | 9 | |||||||||||||||
| Span跨度(m) | 10.5 | 13.5 | 16.5 | 19.5 | 22.5 | 25.5 | 28.5 | 31.5 | 10.5 | 13.5 | 16.5 | 19.5 | 22.5 | 25.5 | 28.5 | 31.5 | |
| 工作制度Duty | A3-A5 | ||||||||||||||||
| 起升速度Lifting Speed | 8m/min、8/0.8m/min | ||||||||||||||||
| 小车运行速度Travelling | 20,30m/min | ||||||||||||||||
| 起重机运行速度Travelling | 20,30,45m/min | ||||||||||||||||
| 操纵方式Work type | 地控、室控、遥控 | ||||||||||||||||
| 电源Powet Supply | 3AC, 380V,50HZ | ||||||||||||||||
| 装机容量Chief volume | 10.7KW | 12.1KW | 10.7KW | 12.1KW | |||||||||||||
| 荐用轨道Crane Rail | P18、P22 | ||||||||||||||||
| 主要尺寸(m) Main Dinension | H | 1150 | 1215 | 1265 | 1150 | 1215 | 1265 | ||||||||||
| H1 | 170 | 105 | 55 | 170 | 105 | 55 | |||||||||||
| H2 | 142 | 242 | 324 | 359 | 429 | 529 | 629 | 679 | 142 | 242 | 324 | 359 | 429 | 529 | 629 | 679 | |
| L1 | 900 | ||||||||||||||||
| L2 | 900 | ||||||||||||||||
| K | 1100 | 1200 | 1200 | 1300 | |||||||||||||
| W | 2500 | 2600 | 2800 | 3000 | 3500 | 3800 | 2600 | 2700 | 2800 | 3000 | 3500 | 3800 | |||||
| B | 2800 | 2900 | 3100 | 3300 | 4000 | 4300 | 3100 | 3200 | 3300 | 3500 | 4000 | 4300 | |||||
| 起重量Cap(t) | 10 | ||||||||||||||||
| 起升高度(m)Lifting Height | 6 | 9 | |||||||||||||||
| Span跨度(m) | 10.5 | 13.5 | 16.5 | 19.5 | 22.5 | 25.5 | 28.5 | 31.5 | 10.5 | 13.5 | 16.5 | 19.5 | 22.5 | 25.5 | 28.5 | 31.5 | |
| 工作制度Duty | A3-A5 | ||||||||||||||||
| 起升速度Lifting Speed | 7m/min、7/0.7m/min (4m/min、4/0.4m/min) | ||||||||||||||||
| 小车运行速度Travelling | 20,30m/min | ||||||||||||||||
| 起重机运行速度Travelling | 20,30,45m/min | ||||||||||||||||
| 操纵方式Work type | 地控、室控、遥控 | ||||||||||||||||
| 电源Powet Supply | 3AC, 380V,50HZ | ||||||||||||||||
| 装机容量Chief volume | 16.2(10.7)KW | 17.6(12.1)KW | 16.2(10.7)KW | 17.6(12.1)KW | |||||||||||||
| 荐用轨道Crane Rail | P24、P38 | ||||||||||||||||
| 主要尺寸(mm) Main Dimension | H | 1291 | 1341 | 1391 | 1291 | 1341 | 1391 | ||||||||||
| H1 | 159 | 109 | 59 | 159 | 109 | 59 | |||||||||||
| H2 | 231 | 291 | 361 | 481 | 531 | 679 | 779 | 809 | 231 | 291 | 361 | 481 | 531 | 679 | 779 | 809 | |
| L1 | 1000 | ||||||||||||||||
| L2 | 1000 | ||||||||||||||||
| K | 1400 | 1500 | 1400 | 1500 | |||||||||||||
| W | 2800 | 3000 | 3500 | 3800 | 3000 | 3200 | 3500 | 3800 | |||||||||
| B | 3300 | 3500 | 4000 | 4300 | 3500 | 3700 | 4000 | 4300 | |||||||||
| 起重量Cap(t) | 16 | ||||||||||||||||
| 起升高度(m)Lifting leight | 6 | 9 | |||||||||||||||
| Span跨度(m) | 10.5 | 13.5 | 16.5 | 19.5 | 22.5 | 25.5 | 28.5 | 31.5 | 10.5 | 13.5 | 16.5 | 19.5 | 22.5 | 25.5 | 28.5 | 31.5 | |
| 工作制度Daty | A3-A5 | ||||||||||||||||
| 起升速度Lifting Speed | 3.5/0.35m/min | ||||||||||||||||
| 小车运行速度Travelling | 20,30m/min | ||||||||||||||||
| 起重机运行速度Travelling | 20,30,45m/min | ||||||||||||||||
| 操纵方式Work type | 地控、室控、遥控 | ||||||||||||||||
| 电源Powet Supply | 3AC, 380V,50HZ | ||||||||||||||||
| 装机容量Chief volume | 12.1KW | 13.5KW | 12.1KW | 13.5KW | |||||||||||||
| 荐用轨道Crane Rail | P24、P38 | ||||||||||||||||
想了解物料、产量、选型及本月优惠报价信息,欢迎您拨打熊猫体育 的服务电话或者在线咨询获取!
服务热线:86-13929139265