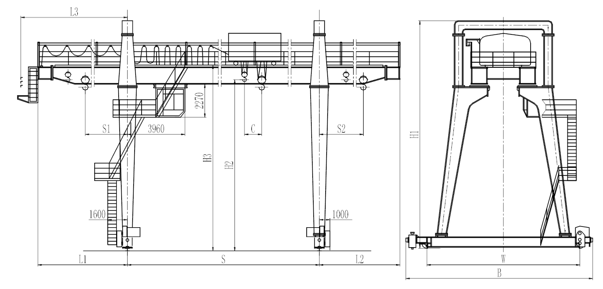
MG型通用32t门式起重机属双主梁通用门式起重机,也称A型32t双梁龙门吊,由桥架、大车运行机构、小车、电气设备等部分构成。本32t起重机是按照GB/T14406-1993《通用门式起重机》设计制造,起重量32t,工作环境为-20~+40℃,工作级别A5、A6两种。

MG型通用32t门式起重机属双主梁通用门式起重机,也称A型32t双梁龙门吊,由桥架、大车运行机构、小车、电气设备等部分构成。本32t起重机是按照GB/T14406-1993《通用门式起重机》设计制造,起重量32t,工作环境为-20~+40℃,工作级别A5、A6两种。
24h全国免费咨询热线
86-13929139265









