熊猫体育

您当前的位置 : 熊猫体育 > 产品中心 > 更多起重设备
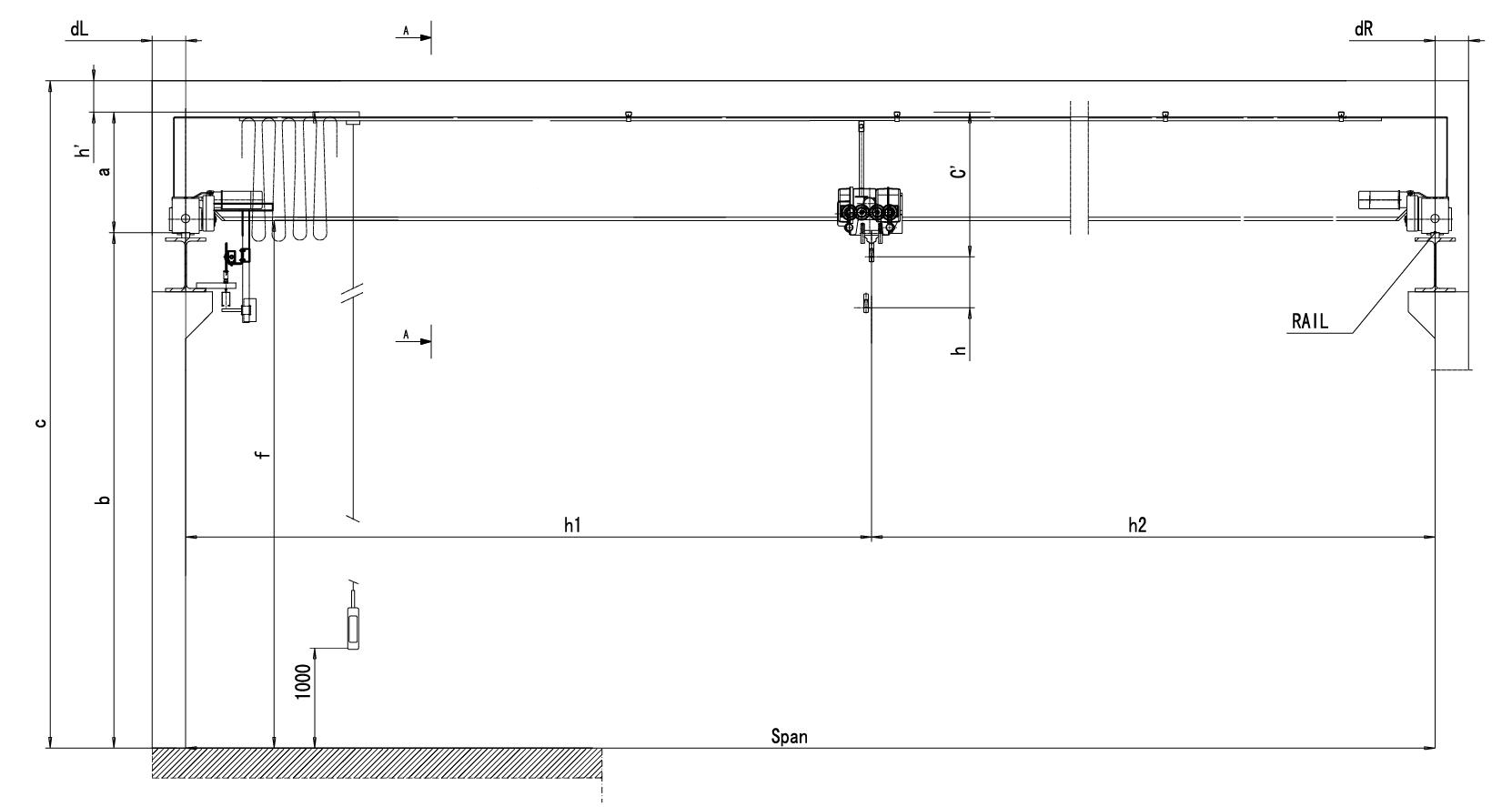
1t欧式电动单梁起重机主要性能及技术参数

1t欧式电动单梁起重机是是基于欧洲轻量化和模块化设计理念以及先进生产制造工艺,在主梁上悬挂1t电动葫芦起升机构,可左右、上下、前后实现物料物体在立体空间搬运。该1t单梁起重机产品技术先进,设计按照国际标准:DIN(德国)、FEM(欧洲)、ISO(国际),具有刚性强、自重轻、结构设计出众等优点,能有效地节约厂房空间和投资成本,行走结构特点独特,是您最佳的选择。


  • 适用起重量1t
  • 适用跨度7.5m-22.5m

24h全国免费咨询热线
86-13929139265

创造客户价值 助力客户成功-熊猫体育「中国」官方网站 - 快乐运动,智慧健身
广东熊猫体育起重设备凭借良好的声誉,优异的品质及完善的服务赢得世界点赞,在国内外众多企业大放异彩,在广东周边地区享有超高的荣誉,屹立在美丽的佛山,展望在世界的起重机行业舞台。