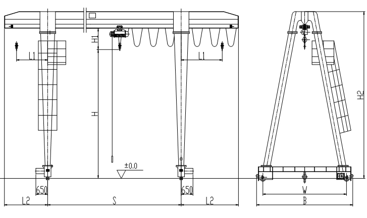
MH型单梁门式起重机是中小型可带悬臂的简易门式起重机,电动葫芦采用CDI、MDI等形式,主梁是U型槽板与工字钢焊接而成的组合梁,大车运行机构采用三合一驱动装置。其适用起重量为3-16t,适用跨度为10-26米,工作环境温度在-25—+40℃范围内。其结构简单、安装、使用、维修方便,多用于工厂、货场、码头、水电站等使用频度低或额定起重量起吊次数少的场所。优点:货期快、经济实惠;缺点:使用中晃动相对较大、工作级别低,不适用繁重场合。本起重机设有地面、操纵室和遥控三种操纵形式以供用户选择使用。
(1) 地面操纵
例:起重量:5t,跨度:22.5m,工作级别:A4
表示方法:MH3-22.5 A4
(2) 操纵室操纵
例:起重量:10t,跨度:16.5m,工作级别:A5
表示方法:MH10t-16.5A5S

| 起重量Cap(t) | 5 | ||||||||||
| 起升高度LiftingHeightH(m) | 6 | 9 | |||||||||
| 跨度Span(m) | 10 | 14 | 18 | 22 | 26 | 10 | 14 | 18 | 22 | 26 | |
| 工作制度Duty | A3-A5 | ||||||||||
| 起升速度LiftingSpeed | 8,8/0.8m/min(标准起升速度为8m/min) | ||||||||||
| 葫芦运行速度Travelling | 20、30m/min(标准葫芦运行速度为20m/min) | ||||||||||
| 起重机运行速度Travelling | 20、30、45m/min(标准起重机运行速度为30m/min) | ||||||||||
| 操纵方式Worktype | 地控、室控、遥控 | ||||||||||
| 电源PowetSupply | 3AC,380V,50HZ | ||||||||||
| 装机容量Chiefvolume | 9.6KW | 11KW | 9.6KW | 11KW | |||||||
| 荐用轨道CraneRail | P18、P22 | ||||||||||
| 主要尺寸(mm) | H1 | 1320 | |||||||||
| MainDimension | H2 | 8656 | 8656 | 8656 | 8671 | 8671 | 11575 | 11575 | 11575 | 11899 | 11899 |
| W | 6000 | 7600 | 7678 | ||||||||
| B | 6520 | 8120 | 8298 | ||||||||
| L1 | 2 | 2.8 | 3.6 | 4.4 | 5.2 | 2 | 2.8 | 3.6 | 4.4 | 5.2 | |
| L2 | 2.5 | 3.5 | 4.5 | 5.5 | 6.5 | 2.5 | 3.5 | 4.5 | 5.5 | 6.5 | |
| 最大轮压(KN) | 有悬臂 | 64 | 65 | 73 | 83 | 90 | 68 | 69 | 77 | 88 | 95 |
| Max.Wheelloading | 无悬臂 | 52 | 53 | 57 | 65 | 68 | 55 | 56 | 60 | 69 | 72 |
| 起重机总重(t) | 有悬臂 | 8.9 | 9.2 | 11.7 | 15.1 | 17.4 | 9.9 | 10.1 | 13.1 | 16.7 | 19.1 |
| Totalweight | 无悬臂 | 8.34 | 8.3 | 10.2 | 13.4 | 14.6 | 9.6 | 9.9 | 11.6 | 15 | 16.3 |
| 起重量Cap(t) | 10 | ||||||||||
| 起升高度LiftingHeightH(m) | 6 | 9 | |||||||||
| 跨度Span(m) | 10 | 14 | 18 | 22 | 26 | 10 | 14 | 18 | 22 | 26 | |
| 工作制度Duty | A3-A5 | ||||||||||
| 起升速度LiftingSpeed | 4,4/0.4m/min,7,7/0.7m/min(标准起升速度为7m/min) | ||||||||||
| 葫芦运行速度Travelling | 20、30m/min(标准葫芦运行速度为20m/min) | ||||||||||
| 起重机运行速度Travelling | 20、30、45m/min(标准起重机运行速度为30m/min) | ||||||||||
| 操纵方式Worktype | 地控、室控、遥控 | ||||||||||
| 电源PowetSupply | 3AC,380V,50HZ | ||||||||||
| 装机容量Chiefvolume | 17KW | 18.4KW | 20KW | 17KW | 18.4KW | 20KW | |||||
| 荐用轨道CraneRail | P24、P38 | ||||||||||
| 主要尺寸(mm) | H1 | 1450 | |||||||||
| MainDimension | H2 | 8510 | 8510 | 8860 | 8973 | 9075 | 11510 | 11510 | 11610 | 11712 | 11854 |
| W | 6000 | 6130 | 7522 | 7550 | 7485 | ||||||
| B | 6620 | 6880 | 8142 | 8300 | 8235 | ||||||
| L1 | 2 | 2.8 | 3.6 | 4.4 | 5.2 | 2 | 2.8 | 3.6 | 4.4 | 5.2 | |
| L2 | 2.5 | 3.5 | 4.5 | 5.5 | 6.5 | 2.5 | 3.5 | 4.5 | 5.5 | 6.5 | |
| 最大轮压(KN) | 有悬臂 | 115 | 120 | 125 | 142 | 149 | 120 | 121 | 132 | 149 | 156 |
| Max.Wheelloading | 无悬臂 | 90 | 93 | 99 | 111 | 116 | 94 | 97 | 106 | 117 | 121 |
| 起重机总重(t) | 有悬臂 | 11.9 | 13.4 | 16.7 | 22.4 | 24.8 | 13.5 | 15.1 | 19.2 | 24.8 | 27.1 |
| Totalweight | 无悬臂 | 11.1 | 12.2 | 14.8 | 19.6 | 21.2 | 12.8 | 13.9 | 17.3 | 22 | 23.5 |
| 起重量Cap(t) | 16 | ||||||||||
| 起升高度LiftingHeightH(m) | 6 | 9 | |||||||||
| 跨度Span(m) | 10 | 14 | 18 | 22 | 26 | 10 | 14 | 18 | 22 | 26 | |
| 工作制度Duty | A3-A5 | ||||||||||
| 起升速度LiftingSpeed | 3.5,3.5/0.35m/min(标准起升速度为3.5m/min) | ||||||||||
| 葫芦运行速度Travelling | 20、30m/min(标准葫芦运行速度为20m/min) | ||||||||||
| 起重机运行速度Travelling | 20、30、45m/min(标准起重机运行速度为30m/min) | ||||||||||
| 操纵方式Worktype | 地控、室控、遥控 | ||||||||||
| 电源PowetSupply | 3AC,380V,50HZ | ||||||||||
| 装机容量Chiefvolume | 19KW | 20.6KW | 27KW | 19KW | 20.6KW | 27KW | |||||
| 荐用轨道CraneRail | P24、P38 | ||||||||||
| 主要尺寸(mm) | H1 | 1900 | |||||||||
| MainDimension | H2 | 8982 | 9117 | 9117 | 9492 | 9492 | 11982 | 12117 | 12117 | 12492 | 12492 |
| W | 6130 | 6000 | 6430 | 6130 | 6000 | 6430 | |||||
| B | 6880 | 6750 | 7180 | 6880 | 6750 | 7180 | |||||
| L1 | 2 | 2.8 | 3.6 | 4.4 | 5.2 | 2 | 2.8 | 3.6 | 4.4 | 5.2 | |
| L2 | 2.5 | 3.5 | 4.5 | 5.5 | 6.5 | 2.5 | 3.5 | 4.5 | 5.5 | 6.5 | |
| 最大轮压(KN) | 有悬臂 | 168 | 173 | 184 | 198 | 206 | 176 | 186 | 192 | 209 | 217 |
| Max.Wheelloading | 无悬臂 | 140 | 144 | 148 | 157 | 161 | 148 | 152 | 155 | 166 | 170 |
| 起重机总重(t) | 有悬臂 | 16 | 19 | 21.5 | 26.1 | 28.8 | 18.8 | 22.1 | 13.1 | 16.7 | 19.1 |
| Totalweight | 无悬臂 | 15.1 | 17.4 | 19.2 | 22.8 | 24.6 | 18 | 20.6 | 22 | 26.3 | 28.2 |
想了解物料、产量、选型及本月优惠报价信息,欢迎您拨打熊猫体育 的服务电话或者在线咨询获取!
服务热线:86-13929139265